Doppelhaushälften IV, III
Eckdaten
Doppelhaushälfte IV - Wohnfläche 135 qm - Grundstück 331 qm
Doppelhaushälfte III - Wohnfläche 135 qm - Grundstück 351 qm
Alles inklusive - unser hochwertiger Standard
- Großer Wohnbereich mit offener Küche
- Studio im Dachgeschoß
- Bodentiefe Fenster im Wohn- und Schlafbereich
- Ankleidezimmer
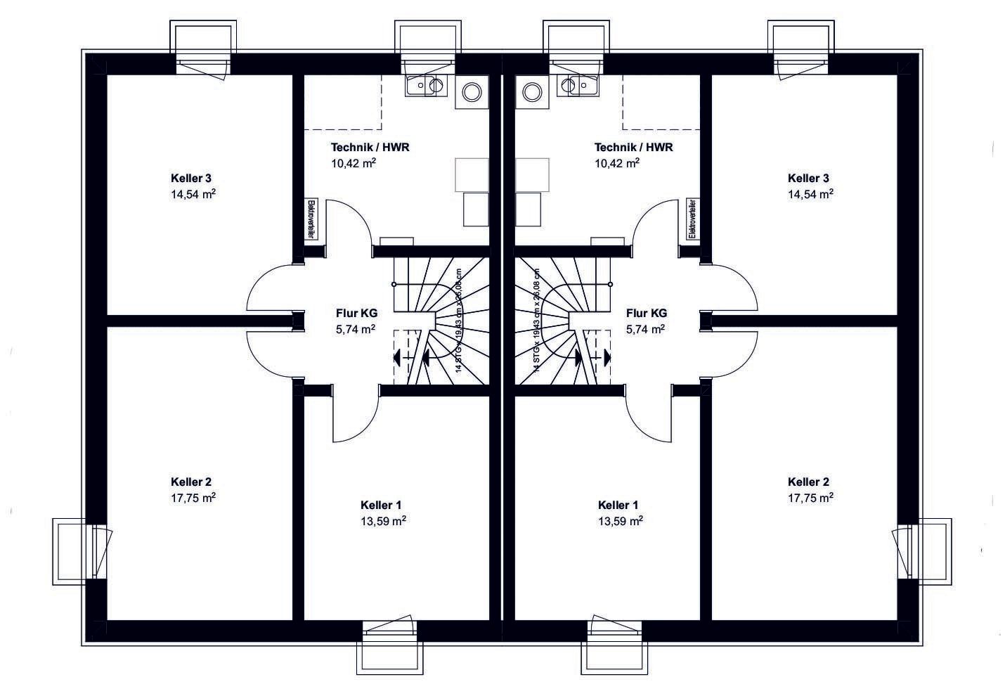
- Keller mit vielfältigen Nutzungsmöglichkeiten
- Außen- und Gartenanlage fertig gestaltet
- Außenwände in Ziegel 36,5 cm Lambda 0,09 W / m2K
- massive Innenwände (auch im OG)
- 3-Scheibenverglasung
- Effizientes Energiekonzept mit KfW 55-Standard
- Fußbodenheizung im gesamten Haus, auch im Keller
- Luft-Wärmepumpe
- Lüftungsanlage mit Wärmerückgewinnung
- Tageslicht-Wellness Bad mit bodenebener Dusche 120 cm x 100 cm und Markensanitäreinrichtung
- provisionsfrei
- Baustart noch nicht erfolgt
Für weitere Details laden wir Sie gerne zu einer Tasse Kaffee in unsere Musterhäuser nach Langerringen ein und zeigen Ihnen das Grundstück. Für einen Termin stehen wir Ihnen kurzfristig zur Verfügung. Wir freuen uns auf Ihren Anruf unter der Rufnummer 08232/808450 oder nutzen Sie unser Kontaktformular.
Grundrisse

Kurzbeschreibung:
· 5,5 Zimmer
· 134,66 m² Wohnfläche nach DIN 277
· 10,61 x 7,49 m Grundfläche
Wohnflächenberechnung:
Wohnfläche Erdgeschoss 61,81 m²
Wohnen/Essen/Küche 48,58 m²
Flur EG 8,01 m²
WC 2,08 m²
Speis 3,14 m²
Wohnfläche Studio 17,99 m²
Studio Grundfläche 32,58 m²
Flur 1,16 m²
Wohnfläche Dachgeschoss 54,86 m²
Badezimmer 7,76 m²
Schlafzimmer 12,81 m²
Flur OG 3,74 m²
Kind 1 17,30 m²
Kind 2 13,25 m²

