4-Familienhaus
Eckdaten
Wohnfläche 74,55 - 74,82 qm - Grundstück 773 qm
Alles inklusive - unser hochwertiger Standard
- Großer Wohnbereich mit offener Küche
- Terrasse oder Balkon
- Stellplatz
- eigener Kellerraum
- Außen- und Gartenanlage fertig gestaltet
- Außenwände in Ziegel 36,5 cm Lambda 0,09 W / m2K
- massive Innenwände (auch im OG)
- 3-Scheibenverglasung
- Tageslicht-Wellness Bad mit bodenebener Dusche und Markensanitäreinrichtung
- Effizientes Energiekonzept mit KfW 55-Standard
- Fußbodenheizung
- Luft-Wärmepumpe
- Lüftungsanlage mit Wärmerückgewinnung
- Kinderspielplatz
- Fahrrad- und Mülltonnenhäuschen
- provisionsfrei
Für weitere Details laden wir Sie gerne zu einer Tasse Kaffee in unsere Musterhäuser nach Langerringen ein und zeigen Ihnen das Grundstück. Für einen Termin stehen wir Ihnen kurzfristig zur Verfügung. Wir freuen uns auf Ihren Anruf unter der Rufnummer 08232/808450 oder nutzen Sie unser Kontaktformular.
Grundrisse


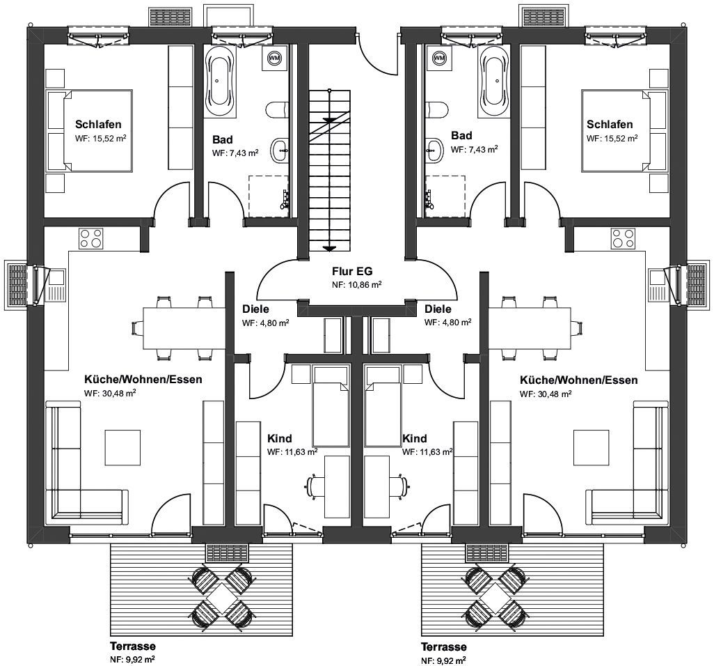
Erdgeschoss-Wohnungen
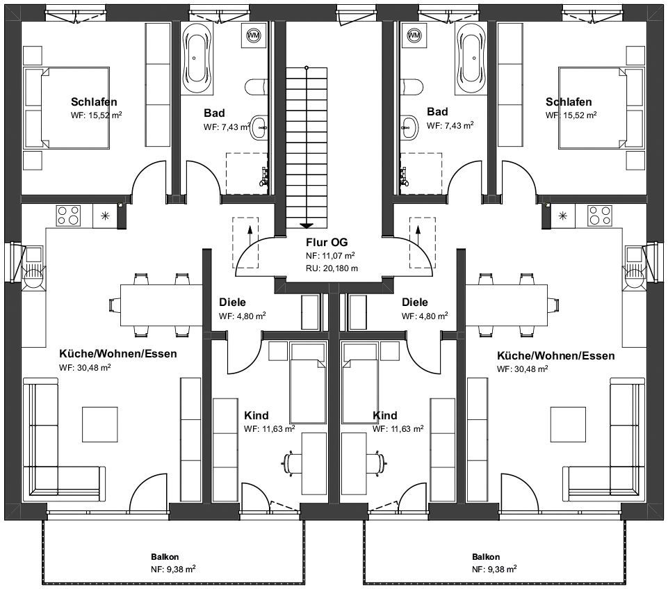
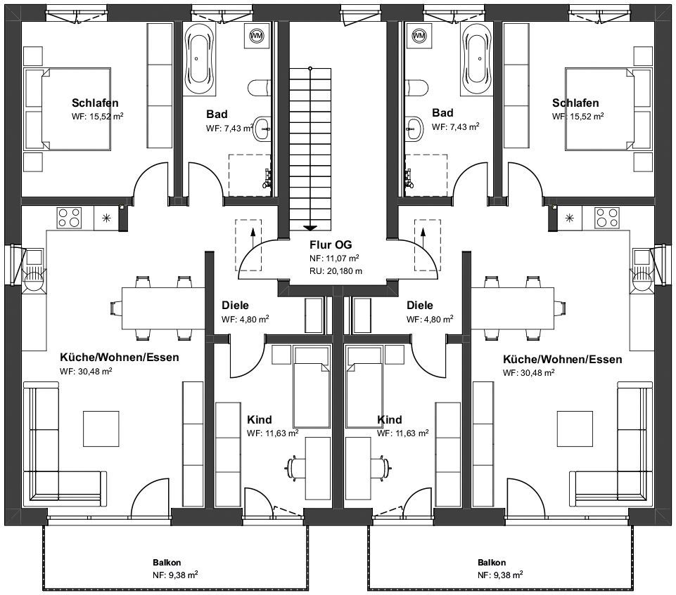
Obergeschoss-Wohnngen


Kellergeschoss mit Technik- und Hauswirtschaftsraum
Übersicht Grundstück mit Spielplatz
Kurzbeschreibung:
· 3 Zimmer
· 74,55 - 74,82 m² Wohnfläche nach DIN 277
Wohnflächenberechnung:
Wohnfläche Wohnungen Erdgeschoss 74,82 m²
Wohnen/Essen/Küche 30,48 m²
Schlafen I 15,52 m²
Kind 11,43 m²
Diele 4,80 m²
Bad 7,43 m²
Terrasse 9,92 m²
Nutzfläche
Keller 21,94 m²
Stellplatz 11,50 m²
Wohnfläche Wohnungen Obergeschoss 74,55 m²
Wohnen/Essen/Küche 30,48 m²
Schlafen I 15,52 m²
Kind 11,43 m²
Diele 4,80 m²
Bad 7,43 m²
Balkon 9,38 m²
Nutzfläche
Keller 21,88 m²
Stellplatz 11,50 m²

