Der Rohbau steht!
Besichtigung Rohbau -
gleich Termin vereinbaren.
Newsletter abonnieren
Einfamilienhaus Fact-Sheet:
141 qm
Wohnfläche
507 qm
Grundstück
KfW 55
Energiesparhaus
4,5
Zimmer
in 40 Minuten
in München
direkte Anbindung
an B17 und A96
Baustart
erfolgt
provisions-
frei
Alles inklusive
unser hochwertiger Standard
- Großer Wohnbereich mit offener Küche
- Bodentiefe Fenster im Wohn- und Schlafbereich
- Ankleidezimmer
- Keller mit vielfältigen Nutzungsmöglichkeiten
- Außen- und Gartenanlage fertig gestaltet
- Außenwände in Ziegel 36,5 cm Lambda 0,09 W / m2K
- massive Innenwände (auch im OG)
- 3-Scheibenverglasung
- Effizientes Energiekonzept mit KfW 55-Standard
- Fußbodenheizung im gesamten Haus, auch im Keller
- Luft-Wärmepumpe
- Lüftungsanlage mit Wärmerückgewinnung
- Tageslicht-Wellness Bad mit bodenebenee Dusche 120 cm x 100 cm und Markensanitäreinrichtung
- provisionsfrei
- Baustart erfolgt
+++ KfW 55 - gefördert ++++ KfW 55 - gefördert ++++ KfW 55 - gefördert ++++ KfW 55 - gefördert +++
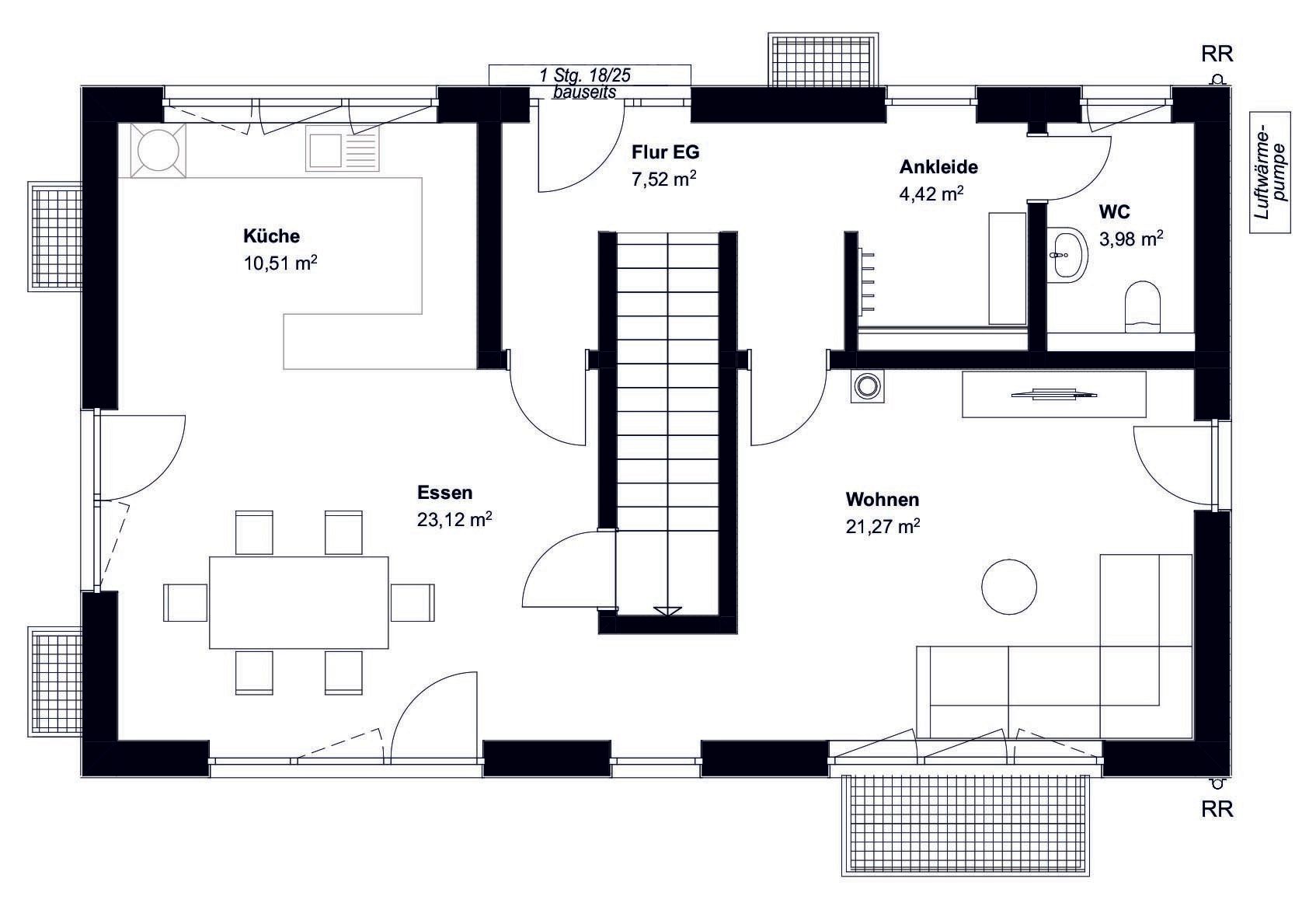
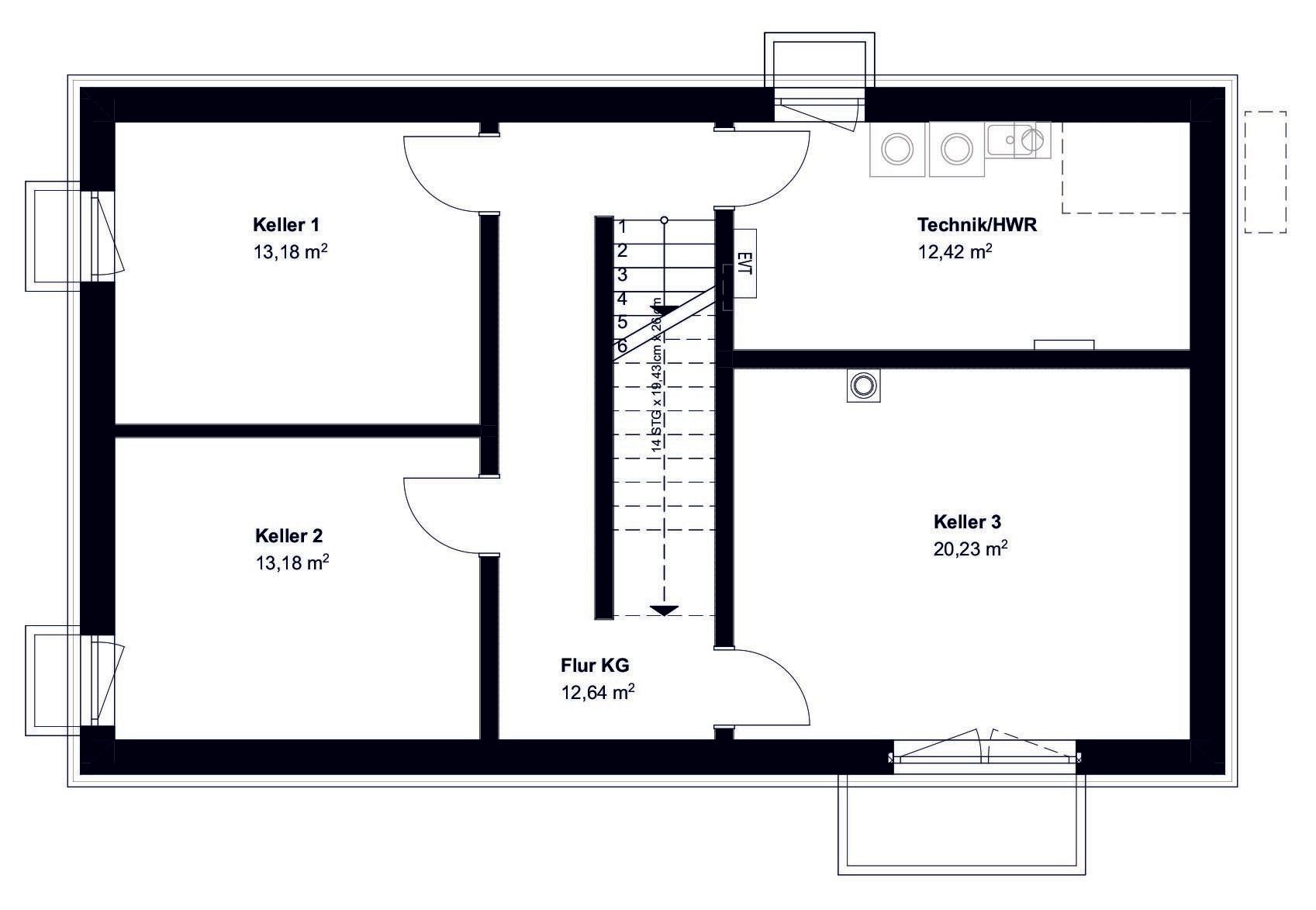
Grundrisse



Key Facts:
· 4,5 Zimmer
· 140,54 m² Wohnfläche nach DIN 277
· 12,49 x 7,49 m Grundfläche
Wohnfläche EG 71 m²:
· Wohnen/Essen/Küche 54,90 m²
· Ankleide 4,42 m²
· Flur EG 7,52 m²
· WC 3,98 m²
Wohnfläche OG 70 m²:
· Badezimmer 11,65 m²
· Schlafzimmer 13,36 m²
· Ankleide 6,57 m²
· Flur OG 11,52 m²
· Kind 1: 13,20 m²
· Kind 2: 13,42 m²

Lust auf mehr?
Gerne beraten wir Dich in unseren Musterhäusern und zeigen Dir das Grundstück. Für einen Termin stehen wir kurzfristig zur Verfügung. Wir freuen uns auf Deinen Anruf unter der Rufnummer 08232/808450 oder nutze das Kontaktformular.
Der Rohbau steht!
Jetzt persönliche Besichtigung anfordern




